Добро пожаловать на http://vipplan.ru

Випплан Рузаевка - это тысячи проектов домов в нашем каталоге!

Вы всегда сможете найти для себя проект дома вашей мечты! Даже если этого не случилось, мы готовы в любую минуту предложить проект индивидуального дома.

Забыли пароль?
Вы еще не регистрировались?

Перейдите по ссылке ниже на страницу регистрации.

Регистрация...

Внимание!!!

В проектную документацию могут быть внесены изменения любой сложности, в соответствии в Вашими пожеланиями!

Полезные статьи

Где копать колодец?

Водоснабжение за городом - Рузаевка всегда было проблематичным. При отсутствии центрального водоснабжения остается только один выход – выкопать колодец. Водоносный пласт есть не везде. Как же определить, где копать колодец?...

Уклон кровли дома

Чтобы вода быстрее уходила с кровли Вашего дома, скатам необходимо придать уклон, который выражающийся в процентах или градусах и измеряющийся геодезическими инструментами. Уклон кровли обозначает угол наклона ската к горизонту. Чем больше уклон, тем круче крыша. У новомодных зданий наклон кровли делают не очень большим....

Проекты домов и коттеджей > Каталог проектов домов > Проект индивидуального одноэтажного жилого дома Vg2289

Проект индивидуального одноэтажного жилого дома Vg2289

Проект индивидуального одноэтажного жилого дома
Зарегистрируйтесь

Проект № Vg2289


Техническое описание
Общая площадь: 140.13 м2
Жилая площадь: 63.61 м2
Высота здания: 7.32 м
Размеры дома: 13.68м×15.18м
Кол-во комнат: 3
Цокольный этаж: нет
Гараж: есть
Мансарда: нет

Kонструкция
Фундамент: ленточный монолитный ж/б
Перекрытия: деревянные балки
Материал стен: Газобетон

Архитектурный раздел
Конструктивный раздел
АР+КР - 52 000 (Со скидкой 20%)
Проект индивидуального одноэтажного жилого дома с размерами здания 13,68x15,18 м. Наружная отделка здания комбинированная - облицовочный кирпич, деревянные панели, камень. Цоколь - отделка камнем. Фундамент - ленточный монолитный ж/б. Наружные стены здания: газобетонные блоки с утеплением минеральной ватой, вент.зазором и отделкой фасада облицовочным кирпичом/ деревянными панелями/ камнем. Внутренние стены: газобетонные блоки. Перегородки - кирпич рядовой. Пол этажа - пол по грунту. Чердачное перекрытие - по деревянным балкам с использованием теплошумоизоляционных материалов типа "URSA" в межбалочном пространстве. Крыша многоскатная. Кровля здания - металлочерепица. Окна – металлопластиковые.
Генплан застройки участка / Паспорт проекта 7000 руб / 10000 руб
Инженерный раздел (полный) 70000 руб
Смета на строительство 35000 руб
Теплотехнический расчет материалов стен Бесплатно
Стоимость проекта со незначительнми изменениями 61500 руб
Стоимость проекта со средними изменениями* 72000 руб
Стоимость проекта со значительными изменениями** 74800 руб

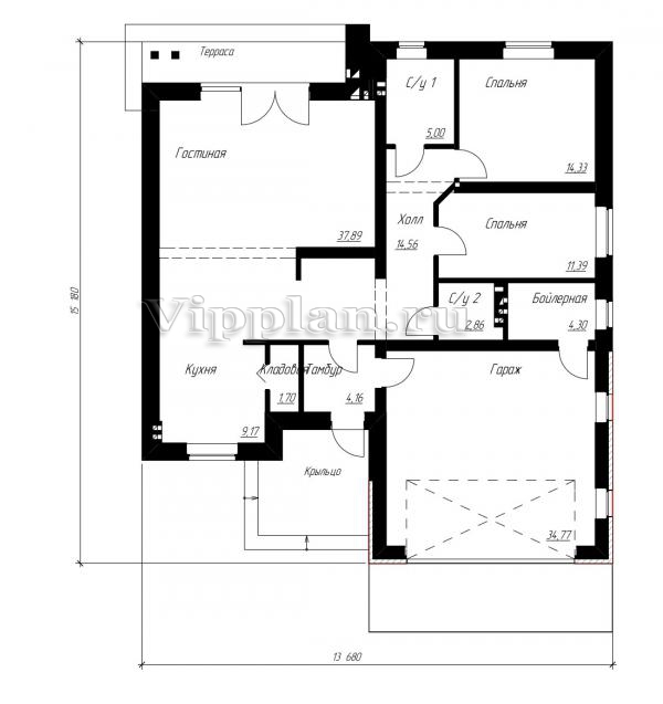
План первого этажа


Тамбур — 4,16 кв м
Кухня — 9,17 кв м
Кладовая — 1,70 кв м
Гостиная — 37,89 кв м
Холл — 14,56 кв м
С/у 1 — 5,00 кв м
С/у 2 — 2,86 кв м
Спальня — 14,33 кв м
Спальня — 11,39 кв м
Бойлерная — 4,30 кв м
Гараж — 34,77 кв м
Проект индивидуального одноэтажного жилого дома Проект индивидуального одноэтажного жилого дома Проект индивидуального одноэтажного жилого дома Проект индивидуального одноэтажного жилого дома

Модификации проектов

Внесение изменений и привязка к участку строительства

В любой из проектов от компании VIPplan - Рузаевка по вашему желанию могут быть внесены изменения в материалы стен, материалы наружной отделки дома, а также будет произведена адаптация проекта под конкретный регион строительства (с учетом грунтов региона, геологических особенностей вашего участка и местных климатических условий) - БЕСПЛАТНО !!! (кроме проектов со скидкой и проектов наших партнеров).

Любой из проектов, размещенных на сайте ruzaevka.vipplan.ru мы можем выполнить из требуемых вам строительных материалов: ячеистый бетон (газобетон, пеноблок), керамоблок, кирпич, шлакоблок, бетонный блок, дерево (брус, клееный брус), каркасная технология (деревянный каркас, металлокаркас (ЛСТК)).

Фасад дома и его наружную отделку так же возможно выполнить с применением различных облицовочных материалов: структурной штукатурки, (с утеплителем и без), сайдингом (пластиковый или металлосайдинг), фиброплитами, кирпича.

 
6 Избранные
проекты

Доставка проектов по России: Москва (Московская область), Санкт-Петербург (Ленинградская область), Краснодар, Ростов-на-Дону, Ставрополь, Сочи, Волгоград, Новосибирск, Белгород, Брянск, Воронеж, Саратов, Хабаровск, Астрахань, Нальчик, Владикавказ, Екатеринбург, Тюмень, Самара, Нижний Новгород, Казань, Пермь, Уфа, Челябинск, Красноярск, Ханты-Мансийск, Иркутск, Курган, Оренбург, Омск, Томск, Барнаул, Новокузнецк, Кемерово, Абакан, Чита, Якутск, Южно-Сахалинск, Петропавловск-Камчатский и страны ближнего зарубежья: Белоруссия, Украина, Казахстан