Добро пожаловать на http://vipplan.ru

Випплан Рузаевка - это тысячи проектов домов в нашем каталоге!

Вы всегда сможете найти для себя проект дома вашей мечты! Даже если этого не случилось, мы готовы в любую минуту предложить проект индивидуального дома.

Забыли пароль?
Вы еще не регистрировались?

Перейдите по ссылке ниже на страницу регистрации.

Регистрация...

Внимание!!!

В проектную документацию могут быть внесены изменения любой сложности, в соответствии в Вашими пожеланиями!

Полезные статьи

Окна в доме

От хорошего стеклопакета зависит почти 50% теплостойкости всего дома. Ведь на проемы в окнах приходится до 45% тепловых потерь дома. Поэтому хорошие стеклопакеты не пропускают тепло из комнаты и должны противостоять проникновению ветра, влаги и холода с наружной стороны....

Перекрытия в доме

Перекрытия – одно из важнейших составляющих строящегося дома. Это горизонтальная внутренняя защитная конструкция, разделяющая по уровню смежные помещения дома. По назначению выделяют подвальные, межэтажные и чердачные перекрытия. При проектировании домов и зданий различного назначения, требования к межэтажным перекрытиям определяются их местоположением и функциями разделяемых помещений: надподвальные, межэтажные, чердачные и т.д....

Проекты домов и коттеджей > Каталог проектов домов > Проект двухэтажного особняка с цокольным этажом Vg1175

Проект двухэтажного особняка с цокольным этажом Vg1175

Проект двухэтажного особняка с цокольным этажом
Зарегистрируйтесь

Проект № Vg1175


Техническое описание
Общая площадь: 350.07 м2
Жилая площадь: 116.3 м2
Высота здания: 8.8 м
Размеры дома: 15.34м×14.17м
Кол-во комнат: 6
Цокольный этаж: есть
Гараж: нет
Мансарда: нет

Kонструкция
Фундамент: Монолитная ж/б плита
Перекрытия: Монолитные перекрытия
Материал стен: material_mon

Архитектурный раздел
Конструктивный раздел
Инженерный раздел
Смета на строительство
АР+КР - 84 000 (Со скидкой 20%)
АР+КР+ИР - 206 500 (Со скидкой 50%)
Проект индивидуального двухтажного жилого дома с размерами здания 15,34 x 14,17 м. Наружная отделка здания – фасадная штукатурка, деревянные панели. Фундамент –монолитная ж/б плита под всей площадью дома с ленточными монолитными ж/б стенами и ленточный ж/б монолитный фундамент. Наружные стены – Проект выполнен в монолитном ж/б каркасе. Заполнение наружных стен дома: керамические блоки с утеплением экструдированным пенополистиролом и отделкой фасадной штукатуркой и деревянными панелями Внутренние стены - керамические блоки. Перегородки – кирпич. Пол подвала - пол по плите. Межэтажное перекрытие - монолитная плита. Чердачное перекрытие - деревянные балки . Крыша – гибкая черепица. Кровля – многоскатая. Окна - металлопластиковые, выполненные по индивидуальному заказу.
Генплан застройки участка / Паспорт проекта 7000 руб / 10000 руб
Инженерный раздел (полный) 122500 руб (175000 руб)
Смета на строительство 65625 руб (87500 руб)
Теплотехнический расчет материалов стен Бесплатно
Стоимость проекта со незначительнми изменениями 96250 руб
Стоимость проекта со средними изменениями* 122500 руб
Стоимость проекта со значительными изменениями** 129500 руб

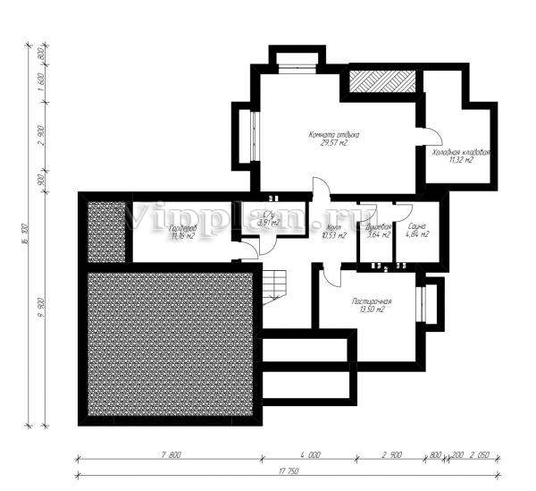
План цокольного этажа


Холл — 10,53 м2
Комната — 29,57 м2
Кладовая — 11,32 м2
С/у — 3,91 м2
Душевая — 3,64 м2
Сауна — 4,84 м2
Постирочная — 13,50 м2
Гардероб — 11,16 м2

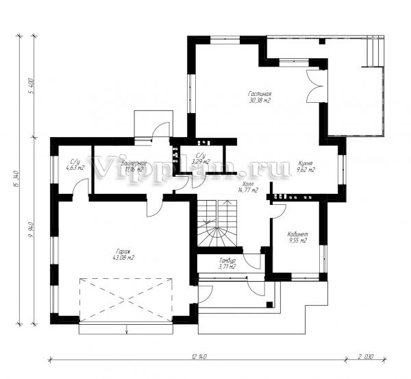
План первого этажа


Тамбур — 3,71 м2
Холл — 14,77 м2
Гостиная — 30,38 м2
Кухня — 9,62 м2
Кабинет — 9,55 м2
С/у — 3,29 м2
Бойлерная — 11,16 м2
С/у — 4,63 м2
Гараж — 43,08 м2

Проект двухэтажного особняка с цокольным этажом

Проект двухэтажного особняка с цокольным этажом

План второго этажа


Холл — 11,36 м2
Спальня — 17,38 м2
Спальня — 12,35 м2
Гардероб — 2,75 м2
С/у — 7,75 м2
Спальня — 16,94 м2
Балкон — 3,29 м2
Балкон — 2,48 м2
Зим/сад — 61,02 м2
Проект двухэтажного особняка с цокольным этажом Проект двухэтажного особняка с цокольным этажом Проект двухэтажного особняка с цокольным этажом Проект двухэтажного особняка с цокольным этажом

Модификации проектов

Внесение изменений и привязка к участку строительства

В любой из проектов от компании VIPplan - Рузаевка по вашему желанию могут быть внесены изменения в материалы стен, материалы наружной отделки дома, а также будет произведена адаптация проекта под конкретный регион строительства (с учетом грунтов региона, геологических особенностей вашего участка и местных климатических условий) - БЕСПЛАТНО !!! (кроме проектов со скидкой и проектов наших партнеров).

Любой из проектов, размещенных на сайте ruzaevka.vipplan.ru мы можем выполнить из требуемых вам строительных материалов: ячеистый бетон (газобетон, пеноблок), керамоблок, кирпич, шлакоблок, бетонный блок, дерево (брус, клееный брус), каркасная технология (деревянный каркас, металлокаркас (ЛСТК)).

Фасад дома и его наружную отделку так же возможно выполнить с применением различных облицовочных материалов: структурной штукатурки, (с утеплителем и без), сайдингом (пластиковый или металлосайдинг), фиброплитами, кирпича.

 
6 Избранные
проекты

Доставка проектов по России: Москва (Московская область), Санкт-Петербург (Ленинградская область), Краснодар, Ростов-на-Дону, Ставрополь, Сочи, Волгоград, Новосибирск, Белгород, Брянск, Воронеж, Саратов, Хабаровск, Астрахань, Нальчик, Владикавказ, Екатеринбург, Тюмень, Самара, Нижний Новгород, Казань, Пермь, Уфа, Челябинск, Красноярск, Ханты-Мансийск, Иркутск, Курган, Оренбург, Омск, Томск, Барнаул, Новокузнецк, Кемерово, Абакан, Чита, Якутск, Южно-Сахалинск, Петропавловск-Камчатский и страны ближнего зарубежья: Белоруссия, Украина, Казахстан